2194:新築戸建
| 価格 | 2,290万円 |
|---|---|
| 所在地 | 四日市市富田一色町 |
| 交通 | 四日市市 富洲原地区 四日市市エリア 富田・富洲原 |
| 最寄駅 | 近鉄名古屋線「川越富洲原」駅 停歩13分 1050m |
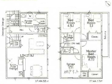
| 間取 | 3LDK+S |
| 土地面積 | 136.17m²(41.19坪) |
| 建物面積 | 90.72m²(27.44坪) |
| 私道面積 | |
| 築年月 | 2026/01 |
| 学区 | 小学校区:富洲原小学校 510m 中学校区:富洲原中学校 1,250m |
| 建物構造 | 木造 |
|---|---|
| 階建 | 地上2階建 |
| 建ぺい率 | 60% |
| 容積率 | 200% |
| 地目 | 宅地 |
| 用途地域 | 第一種住居地域 |
| 土地権利 | 所有権 |
| 取引態様 | 仲介 |
| 引渡時期 | 相談 |
| セットバック | |
|---|---|
| 接道 | 北東 3.7 11m(接面) |
| 諸費用 | |
| 他法条例 | |
| 建築確認番号 | |
| 取引条件有効期限 | 令和08年1月22日 |
特色
①号棟:全4区画、駐車場2台、木造2階建、公営水道、公共下水、都市ガス、電気、建築基準法22条・景観法・宅地造成工事規制区域・都市再生特別措置法、近鉄名古屋線「川越富洲原」駅」徒歩約13分、JR関西本線「富田」駅徒歩約15分
コメント
①号棟:全4区画、駐車場2台、木造2階建、公営水道、公共下水、都市ガス、電気、建築基準法22条・景観法・宅地造成工事規制区域・都市再生特別措置法、近鉄名古屋線「川越富洲原」駅」徒歩約13分、JR関西本線「富田」駅徒歩約15分




